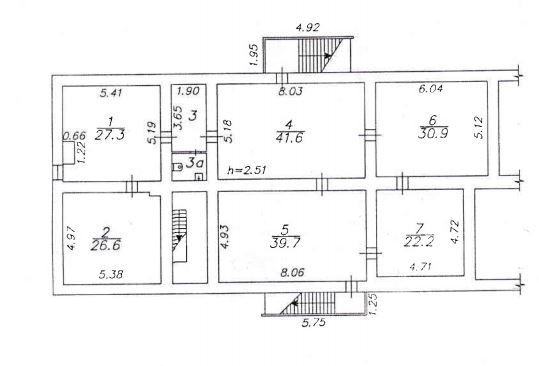
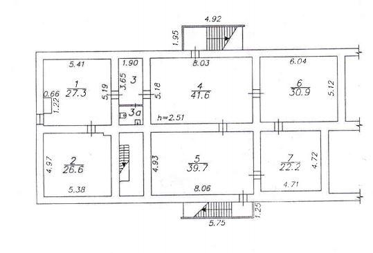
Куликовская, 3а, 198.00 кв.м

6 000 000 ₽
Площадь: 198.00кв.м Этаж 1 из 4
30 303 ₽/
Головченко Ирина
Головченко Ирина
Специалист
или оставьте ваш номер,
и я перезвоню в течение 5 минут
Нажимая на кнопку, вы даете своё согласие на обработку персональных данных и соглашаетесь с политикой конфиденциальности
ОТ СОБСТВЕННИКА БЕЗ КОМИССИИ Продается цокольное помещение под супермаркетом Фея 2 отдельных входа Собственный сан.узел электрическая мощность 15 кВт, есть вогзможность увеличения Хорошая праковка рядом Кабинетная планировка Хороший трафик. Рядом супермаркет, ПВЗ, школа, жилой район. Имеются кондиционеры, ОПС.
Расположение

Куликовская, 3а

Похожие объекты

Посмотреть другие объявления в этой категории